 |
|
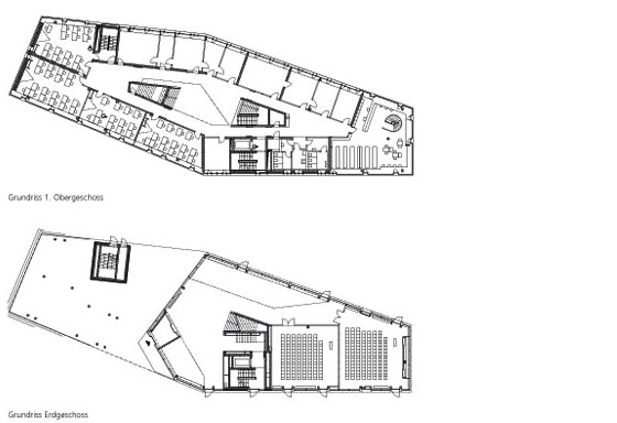
Der Neubau für den Fachbereich Architektur, Stadtplanung und Landschaftsplanung der Universität Kassel (ASL) bildet mit der ehemaligen Produktionshalle und den Torhäusern A+B ein bauliches Ensemble. Der viergeschossige Bau mit dem Grundriss eines gestreckten Sechsecks ist zwar als Solitär konzipiert, leitet jedoch seine Konturen aus städtebaulichen Raumkanten ab. Während er nach Westen zusammen mit den Altbauten einen Platz bildet, wirkt er nach Süden als Endpunkt der Campuserschließung.
Das aufgeständerte Erdgeschoss erlaubt den Durchblick und die Passage von der Straße im Westen zum Park im Osten. Hier wird auch das geräumige Foyer mit den Ausstellungsflächen und den Vortragssälen erschlossen.
Das Atrium im Inneren öffnet sich vom ersten bis zum dritten Obergeschoss und wird durch fünf Oberlichter natürlich belichtet. Es bildet einen kommunikativen Raum über die Geschosse hinweg; hier können auch Entwurfspräsentationen stattfinden. Die öffentlichen Bereiche sind durch Sichtbetonwände, -decken und brüstungen gekennzeichnet. Das Atriumdach wird zusätzlich durch eine triangulierte Geometrie in Facetten aufgefaltet, die das Zenithlicht in unterschiedlicher Intensität reflektieren.
Die Fassaden sind durch Bandfenster und glasverkleidete Betonbrüstungen strukturiert, wobei sich die Öffnungs-flügel als vertikale Elemente in der Fassade abbilden. Die unterschied-lichen Rhythmen der Fassade stehen für die unterschiedlichen Programme im Inneren: Die enge Staffelung der Elemente in Gebäudemitte verweist auf die Büros, während die weiteren Abstände an den Gebäudeenden die Seminar- und Bibliotheksbereiche anzeigen.
|