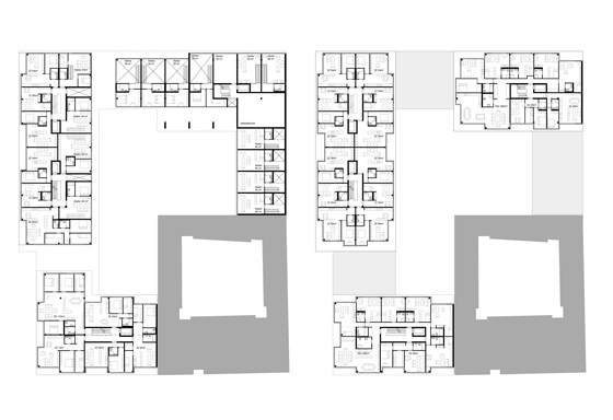
Der Entwurf stellt sich als einfache und prägnante Komposition aus drei rechtwinklig zueinander stehenden kompakten Baukörpern dar. Auf den beiden unteren Geschossen werden diese sockelartig zu einer Randbebauung zusammengefasst. Die städtebauliche Grundhaltung des Entwurfs geht von einer Koexistenz der Bebauungsmuster aus den verschiedenen Zeitschichten (Jahrhundertwende 19./20. Jht, 1960/70er Jahre) aus. Im Übergangsbereich zwischen den unterschiedlichen städtebaulichen Leitbildern folgenden Bebauungen formuliert der Entwurf eine eigenständige Haltung: Zwar arrondiert er den gründerzeitlichen Block; jedoch erlaubt er durch ein gewisses Maß an Öffnung eine bessere Belichtung und Besonnung des Hofs, als es mit einer über alle Geschosse durchgehenden Randbebauung gegeben wäre.
An der Briesestraße ist diese Struktur geeignet, um im Spiel der Höhen, von der Kirche, über Gemeindehaus, Kindergarten, bis hin zu den Hochhäusern der 1960er Jahre, überzeugend mitzuwirken und gleichzeitig das ansteigende Gelände zu bewältigen. Die Höhenstaffelung geht von fünf Geschossen + Dach an der Kienitzer, über sechs Geschossen + Dach an der Briesestraße zu sieben Geschossen + Dach entlang der Blockdurchwegung. Durch den Hang bedingt, wird hier zur Straße hin ein Geschoss weniger wahrnehmbar. Die Höhenentwicklung bleibt damit moderat. Durch die Sockelbebauung wird der Straßenraum gefasst, jedoch durch leichte Vor-und Rücksprünge, wie bei den Nachbarn, belebt. Die zweigeschossigen Durchgänge in den Hof sind auch Adressen für die Aufgänge innerhalb des westlichen Baukörpers. Ebenso werden die Ateliers entlang der Brandwand zur Kita vom Hof aus erschlossen.
Die kompakten Baukörper führen zu einer geringen Anzahl von vertikalen Erschließungskernen und Aufzügen. Es gibt insgesamt nur vier davon, die zwar innenliegend sind, jedoch durch Oberlicht (durchgehender Luftraum) wie auch z.T. durch Seitenlicht in den beiden unteren Geschossen belichtet werden. Die Treppenhäuser sind geeignet, um den relativ hohen Anteil eher kleiner Wohnungen effizient zu erschließen. Durch das städtebauliche Grundschema entstehen relativ viele zweiseitig belichtete, attraktive Eckwohnungen.
Der westliche Baukörper entlang des Wegs enthält vorwiegend kleinere Wohnungen, die entweder West- oder Ost-belichtet sind, bzw. übereck liegen. Der Baukörper zur Briesestraße enthält vorwiegend Wohngruppen. Der Baukörper zur Kienitzer Straße größere Wohnungen, der Sockel Ateliers, die weitgehend als Maisonetten organisiert sind (z.T. mit Luftraum). Die Penthouses auf dem Dach als Staffelgeschosse verfügen über großzügige Außenterrassen. Pro Baukörper gibt es einen Gemeinschaftsraum mit Außenterrasse. Beim westlichen Riegel mit seinen zwei Treppenhäusern ist dieser von beiden Treppenhäusern aus erreichbar. Das Angebot an gemeinschaftichen Räumen wird ergänzt durch das Cafè an der Ecke der Kienitzer Straße zur Blockdurchwegung.
Dier Ateliers und das Café entlang der Briese- sowie der Kienitzstraße sorgen für eine Belebung des Straßenraums. Gleichzeitig haben die Ateliernutzer über die Maisonettenlage eine Rückzugsmöglichkeit auf der oberen Wohnebene.
Alle Wohnungen sind barrierefrei erschlossen. Fast alle Wohnungen haben Balkone oder Außenterrassen. Die wenigen Ein-Zimmer-Wohnungen, die keine Balkone haben, besitzen geschosshohe Fenstertüren, über die ein loggiaartiger Eindruck in der Wohnung hergestellt werden kann. Die Balkone benachbarter Wohnungen sind in ihrer Privatheit durch die Vorsprünge der Fassade geschützt. Die Balkone verfügen über textilen Sonnenschutz. Als innerer Blendschutz dienen Vorhänge.
Der baumbestandene Hof ist gut belichtet und besonnt. Die Spielflächen sind von den Wohnungen aus einsehbar. Schallübertragung aus dem Nachbarhof mit der Kita wird durch die Brandwand verhindert. Trotzdem kommt auch Licht von Osten in den Hof.
Die Tiefgarage wird an der Kienitzer Straße erschlossen und liegt unter dem südlichen Baukörper.
Die Baukonstruktion ist robust, einfach und kostengünstig. Ein Stahlbetonskelett mit quadratischen Stützen wird ausgesteift durch die Kerne. Die Außenwandflächen sind entweder verglast (Holzfenster) oder bestehen aus opaken gedämmten Paneelen mit lasierter hölzerner Deckschicht. Die Balkone sind thermisch getrennt an die Decken angeschlossen. Durch die vertikal durchlaufende Hülle sind die baukonstruktiven Details vergleichsweise einfach. Das vertikale Stabgeländer ist ebenfalls unaufwendig.
Die kompakten Baukörper sorgen für ein günstiges Verhältnis von Außenwand zu Volumen und sind positiv im Sinne der Energieeffizienz.. Die reduzierte Vertikalerschließung ist günstig für Erstellung, Wartung und Unterhalt. Insgesamt entsteht eine klare, repetitive orthogonale Struktur, die doch viele unterschiedliche Raumqualitäten und attraktive Wohnräume schafft.