zentrum für wasser und energiemanagement fh hof
Wettbewerb 2017, 3.Preis, mit as-if architekten: www.as-if.info
Städtebauliches Konzept:
Das neue Zentrum für Wasser- und Energiemanagement (ZWE) ergänzt die Abfolge der Institutsbauten an der Albert-Einstein-Straße um einen neuen Baustein. Der Baukörper nimmt mit seiner Südfassade die Flucht des iisys-Gebäudes auf und setzt mit seinem nahe an die westliche Grundstücksgrenze heran gerückten langgestreckten zweigeschossigen Volumen die städtebauliche Typologie des Nachbargebäudes fort. Auf dem Grundstück wird so eine große zusammenhängende Fläche zum Experimentieren oder für einen weiteren Bauabschnitt freigehalten.

Externe Erschließung:
Die Erschließung des Grundstücks erfolgt über die Albert-Einstein-Straße. Hier liegen auch alle Sparten wie Wasser, Abwasser, Strom, Gas und Medien. Der markante Haupteingang im Süden ist über eine einladende Treppen- und Rampenanlage barrierefrei zugänglich. Die im nordwestlichen Gebäudebereich angelagerte Technikumshalle wird über die Stichstraße zwischen iisys und ZWE angeliefert und von Norden erschlossen.

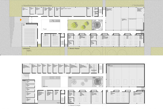
Raumprogramm und innere Erschließung: Der Gebäudekomplex entwickelt sich als Dreibundanlage entlang einer Mittelachse, die Lufträume, Lichthöfe und als Herzstück des Gebäudes den zentralen Pufferspeicher für Wärme aufnimmt. Diese Atriumzone ist ein wichtiger Bestandteil des Betriebskonzepts: Über einen gemeinsamen Eingang erschlossen lassen sich die verschiedenen Bereiche Wasser, Energie, Technikumshalle und Querschnittsfunktionen gut überblicken, sodass dem Besucher die Orientierung leicht fällt. Für Lehrende und Studierende wird darüber hinaus ein kommunikativer Raum mit hoher Aufenthaltsqualität geschaffen, der informelle Begegnungen und die Vernetzung der unterschiedlichen Fachbereiche fördert.
Der Veranstaltungsbereich befindet sich von außen gut einsehbar in der Nähe des Eingangs und wird von den wichtigsten Anlaufstationen der Verwaltung flankiert. Das dazwischen liegende Foyer wirkt großzügig, da es über einen Luftraum mit der oberen Ebene verbunden ist. Dort sind die Büros der Professoren, Mitarbeiter und Masterstudierenden angesiedelt. Über zwei Ebenen hinweg entwickelt sich so ein über kurze Wege gut verknüpfter Lehrbereich. Die Labore befinden sich als zweigeschossige Spange an der östlichen Fassade und sind über großzügig dimensionierte Schächte direkt mit den Technikzentralen im Untergeschoss verbunden. Die Technikumshalle bildet den Abschluss des Gebäuderiegels nach Norden und ist sowohl an die Labore als auch die Werkstatt gut angebunden.

Gebäudekonzept:
Das Gebäudekonzept bietet hohe Flexibilität und Anpassungsfähigkeit und sichert dadurch dauerhaft die Nutzbarkeit des Gebäudes. Durch das Atrium ist eine kompakte Bauweise ohne Verlust von Tageslicht gegeben. Die Lüftung des Atriums erfolgt rein natürlich über steuerbare Nachströmungsöffnungen in der Fassade und RWA-Öffnungen im Bereich der Oberlichter des Atriums. Aufgrund der großen Speichermasse und der gesteuerten Nachtlüftung kann das Atrium auch an heißen Sommertagen ohne mechanische Kühlung auf mittleren Raumtemperaturen gehalten werden. Alle Bereiche des Gebäudes sind barrierefrei erschlossen.

Architektur:
Die Gebäudekubatur ist als kompaktes Volumen angelegt, das durch Einschnitte und eine den Funktionen entsprechende dynamische Höhenentwicklung gegliedert wird. Der massiv wirkende Riegel wird durch das transparent ausgebildete Erdgeschoss zum Schweben gebracht und wirkt so einladend in den Straßenraum hinein. Die deutlich erkennbare Ausformulierung der Eingänge trägt zur Adressbildung bei. Die mit Glasmosaikfliesen belegte opake Fassade verleiht dem massiven Gebäude Leichtigkeit und und lässt es aufgrund des schimmernden Materials zu verschiedenen Tageszeiten unterschiedlich wirken. Die Glasfassaden sind als Pfosten-Riegel-Konstruktion ausgebildet und erhalten einen außen liegenden Sonnenschutz – im EG mit Raffstoren, im OG mit vertikal verschiebbaren Faltläden aus Lochblech. Im Gebäudeinneren werden haptische Materialien wie Sichtestrich und Parkett und helle Farben verwendet, was ein angenehmes Lern- und Arbeitsklima erzeugt.
1 2 3 4 5 6 7