Das Gebäude liegt am zentralen Standort „Holländischer Platz“ der Universität Kassel zwischen Moritzstraße und Arnold-Bode-Straße.
Es arrondiert einerseits den Südcampus, bildet andererseits den Auftakt für die Entwicklung des Nordgeländes. Im Osten grenzt das Gebäude an die Campuspromenade, die beide Campusbereiche verbinden wird. Zusammen mit der östlich benachbarten Mensa bildet das Hörsaal Campus Center einen Kern mit zentralen Funktionen für den Gesamtcampus.
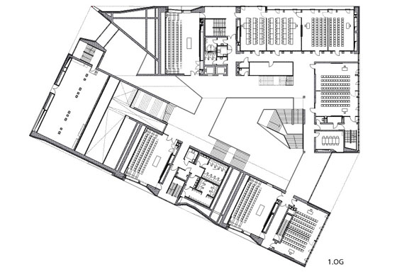
Das Gebäude nimmt zwei Nutzungen auf: Einerseits Lehrflächen (6 Hörsäle, 8 Seminarräume), andererseits Büroflächen für die Abteilungen Studium und Lehre der Universitätsverwaltung, sowie das Studentenwerk. Die sechs Hörsäle haben ca. 2.400 Plätze bei Saalgrößen zwischen 632 und 250 Plätzen.
Das kompakte Gebäude mit fünfeckiger Grundrisskontur folgt in seiner Geometrie den anliegenden Straßen. Das oberste Geschoss (3.OG) füllt die fünfeckige Außenkontur in der Dachaufsicht nicht vollständig aus, sondern hat Innenhöfe („Patios“), die der Belichtung der Büros im 3.OG dienen.
In der Mitte des Gebäudes liegt ein Atrium, das vom Erdgeschoss bis zum 2.OG reicht. Dieses Atrium wird durch geschosshohe konische Dachaufsätze von oben belichtet. Die Dachaufsätze füllen einen Teil der Patios aus.
Das Gebäude wird aus mehreren Richtungen erschlossen. Im großzügigen Foyer treffen sich die Wege; die Foyerfläche ist nicht nur Verkehrsfläche, sondern wird auch für Veranstaltungen genutzt. Das Atrium erlaubt Blickverbindungen über alle Geschosse und erleichtert so die Orientierung.
Die Außenwände bestehen aus Stahlbeton mit einer außenliegenden Wärmedämmung und einer vorgehängten Fassade. Die verglasten Abschnitte der Fassade zeichnen zum Teil die ansteigenden Böden der Hörsäle nach. Sie verfügen über Sonnenschutzglas bzw. über außenliegenden Sonnenschutz. Im Erdgeschoss und zum Teil auch im 1. OG springt das Gebäudevolumen zurück und gibt so den angrenzenden Wegen und Gassen mehr Raum. Der Rücksprung im EG bewirkt eine natürliche Verschattung der Glasflächen. Er erlaubt die Anordnung von Außenplätzen im Loungebereich des Erdgeschosses.