 |
|
Raumkontinuum
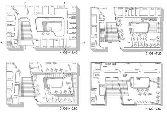
Der Ausgangspunkt des Projekts für die Mensa und Zentrale Universitäts-verwaltung in Berlin Adlershof ist eine städtebaulich vorgegebene Gebäudekubatur. Höhe und Tiefe dieser Kubatur legen es nahe, zunächst Hohlräume vom Bauvolumen abzuziehen, um Gestaltungsspielraum für die Belichtung, Erschließung, und Orientierung der Innenräume zu bekommen. Durch die plastischen Hohlräume entstehen Höfe, Rücksprünge, Terrassen und Freiflächen.
Die Mannigfaltigkeit der Gebäude-hülle wird bei diesem Projekt ausgehend von den Schnittflächen der Hohlräume entwickelt, nicht von den Außenkanten des städtebaulichen Bauvolumens. Letztere erscheinen überwiegend als Anschnitte, sind verglast und zeigen die Hülle als Kontur. So entsteht ein Spiel zwischen gekurvter Randkontur, kontinuierlicher Oberfläche und plastischem Raumvoluminen. Das Projekt versucht so, die suggestive Räumlichkeit skulpturaler Architektur mit den organisatorischen Vorteilen fließender Raumzuweisungen zu verbinden, die auch dem Erforderniss einer optimierten und reibungslosen Erschließung der Mensa Rechnung tragen.
|